Discover historic Highland Park — one of the state’s oldest summer cottage resorts
Karen Lowe's book details the nearly 140-year history of Highland Park in Grand Haven. In this eight-part series, we'll get a peak at the past with excerpts from The Historic Cottages of Highland Park.
In her book, The Historic Cottages of Highland Park, Karen Lowe explores the history of this unique enclave along the shores of Lake Michigan. Highland Park sits near the Grand Haven State Park with Lake Avenue to the north and Grand Avenue to the south. Our series will offer excerpts from the book. For more information or to buy a copy of the book, visit lulu.com or any local bookseller.
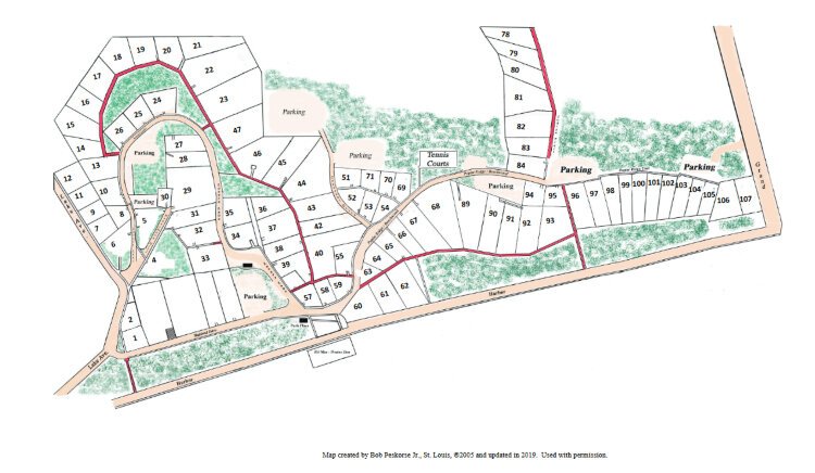
The Highland Park Association is one of the oldest incorporated summer resort associations in the state of Michigan. It is fitting that this 68-acre resort of historical cottages has also been designated a historical conservancy, for Highland Park is located on the eastern shore of Lake Michigan on some of the only freshwater dunes in the world. These sand dunes, which are over 10,000 years old, form a natural park and contain unique vegetation found only along the Great Lakes.

With the discovery of mineral springs in Spring Lake and Grand Haven in 1870, the tri-cities area was already a popular destination for city folk to “take the waters.” The vast waters of Lake Michigan were indeed a sight to behold, standing in the shade of the poplar, oak, and beech trees that lined the majestic dunes of Grand Haven’s shores. It is no wonder that Grand Haven’s Highland Park became a summer resort magnet for the wealthy families of Grand Rapids, Chicago, Joliet, and St. Louis.
Over the years, the Highland Park Association has retained its rustic charm with 100 cottages nestled in the beautiful natural environment of wooded dunes, sandy beach, and Lake Michigan [between Lake Avenue and Grand Avenue].
To encourage the building of cottages, several of the original investors, particularly the lumber barons, led by example and further invested in Highland Park by building cottages themselves (e.g., Dwight Cutler, Arthur Kromer, Charles Boyden, Thomas Parish, Joseph Koeltz, and Dr. John Reynolds, among others).

In the early days of the resort, only horses and wagons traveled the narrow dirt roads to Highland Park.
Many summer resorters arrived by either passenger steamers or by train. They relied on John Vyn and his livery service to meet them at the train depot (or ship dock) and drive them on the old dirt road (Lake Avenue) to the Park. Teams of horses would carry the trunks and other baggage through the woods or along the beach to Highland Park. Once in the park, Vyn and his men would put the huge steamer trunks on their backs and haul them up as many as 100 steps or more to a cottage.
By the mid-1890s, the Grand Haven Street Railway’s “Dummy Line” began taking passengers out to Highland Park. From downtown Grand Haven on Washington Street, the Dummy Line would make just two stops: one at the curve by Lighthouse Hill and one at Captain Walker’s Pavilion (now Noto’s at the Bil-Mar) at Highland Park, which was the end of the line. By 1900, the Grand Rapids, Grand Haven and Muskegon Railway (also known as the Interurban) took over the “Dummy Line.” Instead of pressurized steam, the train ran on an electric current generated from a powerhouse in Fruitport. The Interurban extended the tracks south of Captain Walker’s pavilion to Stickney Ridge, where the tracks made a loop.

Life in the Highland Park cottages was a step above camping in the early days. There was no electricity, no plumbing and no modern ‘conveniences’. Each cottage had an ‘ice box’ and blocks of ice were delivered each week to the cottages by Verplank’s Spring Lake Ice or Van Zanten & Son. Many cottagers would order groceries to be delivered from Van Lopik & Sons grocery and general store, operated by Gerrit Van Lopik I and located on 206 Washington St. By 1913, Van Lopik’s grandson, Gerrit Ekkins, had taken over the family grocery business in town.
Ekkins would also set up a small store (1920-1935) on Lake Avenue during the on-season to accommodate the cottagers. Later, Welsh & Peters ran a little grocery store at the pavilion (now Noto’s at the Bil-Mar restaurant). Pauline Richards (of Lindenloft cottage ) worked at the pavilion store for several summers and drove a truck to Grand Rapids at 5 a.m. each morning to pick up fresh produce.
Boer, Helen. Highland Park Yesterday and Today, 1983. P.7.
A day on the ridge might start with waking up to the sounds of Lake Michigan beckoning. There were picnics on the beach, walks on the boardwalks or strolls along Lover’s Lane. Children had their run of the beach and dunes most of the day — playing or swimming in the water or hiking in the woods — but had to be home in time to ‘dress for dinner.’
As the years went on, families expanded and more generations came to know Highland Park. Ball games were organized on the beach, card games in the evening and children (as well as grandchildren) continued to have their run of the dunes.

Prior to her election to Grand Haven City Council, Karen Lowe served as commissioner on the city’s Historic Conservation District Commission. She holds a Masters in Business Administration degree from Washington University and a Bachelor’s of Science degree in nursing from the University of Illinois. Recently retired, she was a partner at PricewaterhouseCoopers and a vice president and general manager at IBM.
